Strada Petru Rareș nr. 9, Voluntari, jud. Ilfov, România

Vila 2

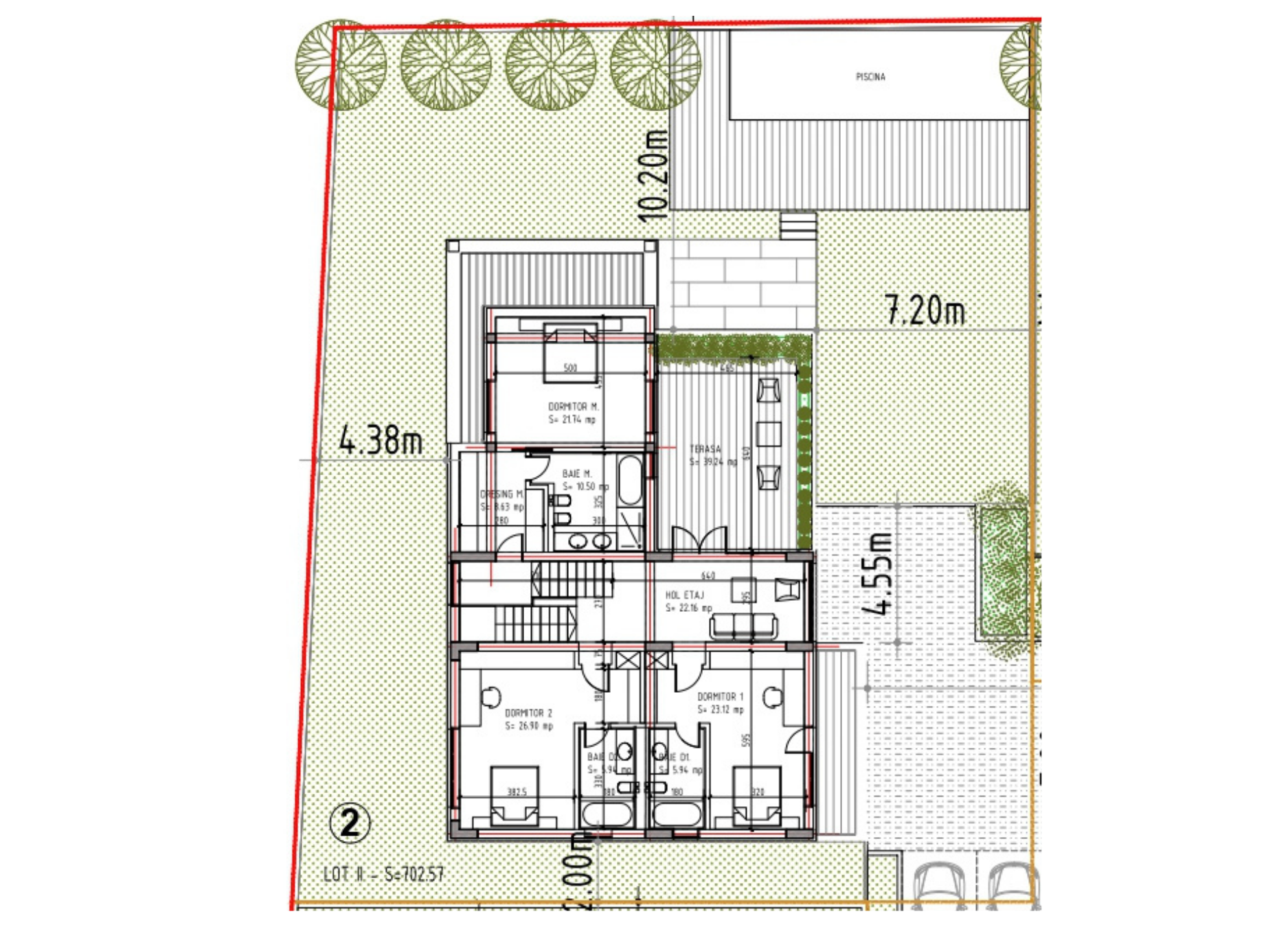
Vila 2 este o reședință contemporană concepută pentru viața de familie, cu zonă de zi amplă deschisă către terasă și grădină, circulații logice și dormitoare luminoase. Structura din beton armat, materialele certificate și execuția atentă asigură stabilitate și durabilitate pe termen lung. Confortul zilnic este susținut de încălzirea în pardoseală, tâmplăria performantă și climatizarea integrată, iar compartimentarea inteligentă oferă depozitări reale și un flux natural între bucătărie, dining și living. Vila 2 – La Quinta Villas Caracteristici principale – Vila 2 Design contemporan, linii curate, terase generoase și grădină proprie Structură din beton armat; izolații dimensionate corect Finisaje premium și instalații sanitare/termice/electrice integrate cu atenție Iluminare naturală abundentă; uși și pardoseli selectate pentru utilizare intensivă Suprafețe orientative: construită ~384,5 mp, teren ~702,6 mp, terase ~104,6 mp

  • Status FINALIZATA
  • TipulVila
  • Suprafațăde la 385 mp
  • Prețde la 1590000
  • Locuri parcare4

Vila 2


SpațiuDimensiune
Suprafață construită385 mp
Suprafață teren705 mp
Suprafață terase105 mp

 

Finisaje și dotări

Finisaje interioare

Fiecare vilă se predă cu posibilitatea de a alege gresie și parchet dintr-o gamă variată, astfel încât viitorii proprietari își pot personaliza spațiile în acord cu propriul stil.

Climatizare

Confortul termic este asigurat prin încălzire în pardoseală și sistem de ventilație și răcire Daikin încastrat, soluții moderne care aduc eficiență și eleganță în fiecare vilă.

Piscină & exterioare

Grădină privată cu opțiune de piscină, terase generoase și zone de relaxare (pergolă, dining, lounge). Iluminat arhitectural pentru accente elegante, iar balustradele din sticlă securizată asigură siguranță și un design modern, cu panoramă clară.

Smart home & securitate

Control pe zone pentru încălzire/climatizare, scenarii de iluminat, pregătire pentru jaluzele electrice, videointerfon și infrastructură pentru CCTV – confort și siguranță la un nivel superior.

Izolație exterioară

Exteriorul clădirii beneficiază de o izolație performantă cu vată minerală de 15 cm, asigurând eficiență energetică și un climat interior confortabil în orice anotimp.

Tâmplărie: Schüco

Profile din aluminiu Schüco cu geam tripan Low-E, etanșare superioară termo-fonică și feronerie premium pentru durabilitate, siguranță și confort.

Documentație utilă

Pentru orice informații suplimentare ne puteți contacta la 0744 818 808 sau pe e-mail la office@laquinta.ro.