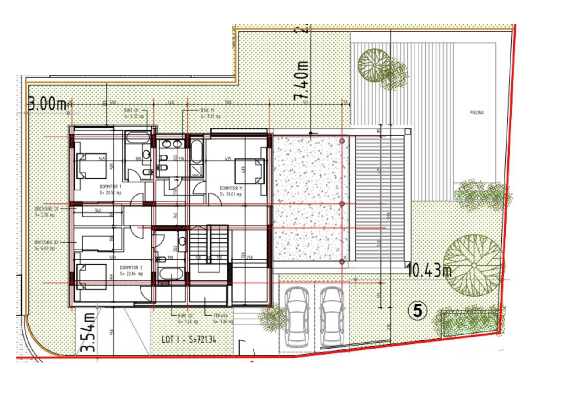
Vila 5 este o reședință contemporană concepută pentru viața de familie, cu zonă de zi amplă deschisă către terasă și grădină, circulații logice și dormitoare luminoase. Structura din beton armat, materialele certificate și execuția atentă asigură stabilitate și durabilitate pe termen lung. Confortul zilnic este susținut de încălzirea în pardoseală, tâmplăria performantă și climatizarea integrată, iar compartimentarea inteligentă oferă depozitări reale și un flux natural între bucătărie, dining și living.
Caracteristici principale – Vila 5
Design contemporan, linii curate, terase generoase și grădină proprie
Structură din beton armat; izolații dimensionate corect
Finisaje premium și instalații sanitare/termice/electrice integrate cu atenție
Iluminare naturală abundentă; uși și pardoseli selectate pentru utilizare intensivă
Suprafețe orientative: construită ~385 mp, teren ~725 mp, terase ~65 mp